Tổng hợp 20+ mẫu nhà gác lửng 5x15 đẹp, hiện đại, đáng xây dựng

Mẫu nhà gác lửng 5x15 là một lựa chọn phổ biến và hợp lý cho những gia đình muốn có không gian sống tiện nghi và linh hoạt trong diện tích hạn chế. Nhà gác lửng 5x15 không chỉ đẹp mắt mà còn cung cấp sự thoải mái và tiện ích cho cả gia đình. Trong bài viết này, DURAflex sẽ giới thiệu đến bạn những mẫu nhà gác lửng đẹp nhất cùng các lưu ý quan trọng khi xây nhà gác lửng 5x15.

Vì sao mẫu nhà gác lửng 5x15m được ưa chuộng?

Có thể nói, mẫu nhà gác lửng 5x15 đang là một trong những kiểu nhà được nhiều người yêu thích và đánh giá cao hiện nay. Lý do giúp mẫu nhà gác lửng này trở thành xu hướng là bởi:

  • Tiết kiệm diện tích: Nhà gác lửng tận dụng không gian trên cao vốn thường được bỏ trống để tối ưu diện tích sử dụng. Điều này rất hữu ích đối với những gia đình đông người nhưng diện tích đất nền nhỏ. Ngoài ra, những căn trọ, chung cư nhỏ hẹp cũng có thể áp dụng mẫu này để cải tạo, cơi nới nhà.
  • Đảm bảo tính riêng tư: Gác lửng nằm trên cao, bố trí thêm cửa hoặc tấm rèm mỏng là có thể tạo ra không gian riêng tư. Bạn có thể sử dụng gác lửng để làm phòng ngủ, phòng làm việc, phòng đọc sách hay phòng giải trí mà không lo phiền đến người khác. 
  • Tạo cảm giác thoáng đãng: Với không gian cao hơn so với tầng chính, nhà gác lửng tạo ra cảm giác thoáng đãng và mở rộng không gian sống. Ánh sáng và không khí tự nhiên có thể tràn vào tốt hơn, mang lại cảm giác dễ chịu và gần gũi với thiên nhiên.
  • Thiết kế độc đáo: Nhà gác lửng thường có thiết kế độc đáo và thu hút sự chú ý. Với sự kết hợp của các cấu trúc và hệ thống nâng cao không gian, nhà gác lửng mang đến một phong cách kiến trúc độc đáo và đẹp mắt.
  • Tiết kiệm chi phí và thời gian xây dựng: Chi phí xây nhà gác lửng sẽ thấp hơn nhiều so với việc xây thêm 1 tầng lầu hoàn chỉnh. Hơn nữa, vì diện tích nhỏ hơn nên thời gian thi công cũng nhanh hơn.
Image
Mẫu nhà gác lửng 5x15 đẹp, tiện nghi

Mẫu nhà gác lửng 5x15 đẹp, hiện đại, được nhiều gia chủ ưa chuộng (Nguồn: Internet)

Chi phí xây dựng mẫu nhà gác lửng 5x15m

Chi phí xây dựng mẫu nhà gác lửng 5x15 trọn gói phụ thuộc vào nhiều yếu tố khác nhau. Chủ nhà cần cân nhắc kỹ các vấn đề dưới đây để tính toán ngân sách cho phù hợp với khả năng tài chính của mình:

  • Thiết kế kiến trúc: Những yêu cầu đặc biệt về cấu trúc, hình dáng hoặc chi tiết thi công phức tạp có thể tăng chi phí do yêu cầu kỹ thuật cao.
  • Địa điểm xây dựng: Nếu công trình được xây dựng ở vùng có điều kiện khó khăn, cần thực hiện các biện pháp bảo vệ môi trường, chi phí sẽ tăng lên.
  • Nhân công và thời gian thi công: Số lượng công nhân cần thiết và thời gian hoàn thành công trình đều ảnh hưởng đến chi phí xây dựng.
  • Phụ kiện và trang thiết bị: Các phụ kiện, trang thiết bị và hệ thống công nghệ mà bạn chọn cũng sẽ ảnh hưởng đến chi phí đầu tư nhà ở.
  • Vật liệu xây dựng: Vật liệu cao cấp và chất lượng tốt thường có giá cao hơn, trong khi vật liệu cấp thấp có giá thấp hơn. Tuy nhiên, không nên vì giá rẻ mà lựa chọn vật liệu kém chất lượng, bởi đây là yếu tố quan trọng quyết định đến tuổi thọ công trình và sự an toàn của các thành viên trong gia đình.

Hiện nay, tấm xi măng sợi DURAflex 2X (tấm Cemboard) là vật liệu bê tông siêu nhẹ, siêu bền chắc, khả năng chịu lực cao, giúp đảm bảo an toàn và giảm tải trọng lên nền móng ngôi nhà. Bên cạnh đó, tấm xi măng DURAflex 2X còn có các tính năng nổi bật khác như chịu ẩm vượt trội, cách âm, cách nhiệt, chống nóng hiệu quả, bảo vệ ngôi nhà bạn khỏi các tác hại của thời tiết hoặc hỏa hoạn. 

Image
Vật liệu xây dựng nhà gác lửng 5x15 bền đẹp, giá rẻ

Tấm xi măng DURAflex có nhiều ưu điểm vượt trội

Tấm xi măng DURAflex 2X với khả năng cách âm tốt, thích hợp làm vách ngăn phòng, tạo ra không gian riêng tư, yên tĩnh cho mỗi thành viên trong gia đình. Ngoài ra, nhờ tính năng bền chắc và bề mặt phẳng mịn, sản phẩm cũng được ứng dụng để ốp tường, làm tấm xi măng lát sàn chịu lực, lợp mái chống nóng, gia tăng tính thẩm mỹ cho ngôi nhà.

Tấm xi măng DURAflex được nhiều chủ đầu tư và thầu thợ đánh giá cao, tin tưởng sử dụng trong các công trình từ nhà ở dân dụng, nhà xưởng công nghiệp,... nhờ vào chất lượng vượt trội và các ưu điểm của nó.

BÁO GIÁ NGAY

Image
Chi phí xây dựng mẫu nhà gác lửng 5x15

Chi phí xây dựng mỗi ngôi nhà đều khác nhau (Nguồn: Internet)

>> Xem thêm:

Tổng hợp 20+ mẫu nhà gác lửng 5x15 đẹp, hiện đại, tiện nghi nhất

Dưới đây là những mẫu nhà gác lửng 5x15 vừa hiện đại vừa phù hợp với điều kiện kinh tế của nhiều gia đình:

Mẫu nhà cấp 4 với gác lửng 5x15 đơn giản

Mẫu nhà gác lửng đẹp không nhất thiết phải có nhiều chi tiết cầu kỳ. Càng đơn giản và đáp ứng được nhu cầu sử dụng cơ bản thì mẫu nhà này càng cuốn hút.

Image
Mẫu nhà cấp 4 gác lửng 5x15 đẹp, giá rẻ

Chi phí xây dựng nhà gác lửng 5x15 tương đối rẻ (Nguồn: Internet)

Mẫu nhà gác lửng 5x15 2 phòng ngủ

Mẫu nhà này phù hợp với gia đình có 3-4 người. Sàn gác lửng làm từ tấm xi măng DURAflex có khả năng chịu lực, chịu tải trọng cao, vì vậy gia chủ có thể bố trí nhiều vật dụng thỏa thích mà không lo sàn bị sụt lún.

Image
Mẫu nhà gác lửng 5x15 đẹp, hiện đại nhất 2023

Nhà gác lửng 2 phòng ngủ đẹp, ấm cúng với lót sàn bằng tấm xi măng vân gỗ DURAwood (Nguồn: Internet)

Mẫu nhà gác lửng 5x15 3 phòng ngủ

Mẫu nhà gác lửng 3 phòng ngủ 5x15 được các gia đình đông thành viên lựa chọn. Nhờ phần gác lửng mà ngôi nhà có thêm không gian để sinh hoạt hoặc lưu trữ.

Image
Mẫu nhà gác lửng 5x15 có 3 phòng ngủ đẹp, tiện nghi nhất

Mẫu nhà gác lửng 5x15 3 phòng ngủ đẹp, đầy đủ tiện nghi (Nguồn: Internet)

Mẫu nhà cấp 4 gác lửng 5x15 200 triệu

Nhu cầu tìm hiểu mẫu nhà cấp 4 có gác lửng 5x15 200 triệu ngày càng nhiều vì đây là chi phí xây dựng hợp lý. Với số tiền này, bạn sẽ có đầy đủ phòng khách, phòng bếp, nhà tắm, phòng ngủ với thiết kế đơn giản, hiện đại.

Image
Mẫu nhà cấp 4 gác lửng 5x15 đẹp giá 200 triệu

Mẫu nhà cấp 4 gác lửng 5x15 200 triệu đẹp, thoáng đãng với hệ thống cửa kính (Nguồn: Internet)

Mẫu nhà cấp 4 gác lửng 5x15 500 triệu

Mẫu nhà cấp 4 gác lửng 5x15 giá 500 triệu sẽ giúp gia chủ có thêm nhiều sự lựa chọn hơn về phong cách thiết kế và công năng sử dụng. Bạn có thể bố trí thêm phòng thờ, sân vườn hay gara để xe ô tô. 

Image
Mẫu nhà cấp 4 gác lửng 5x15 hiện đại giá 500 triệu

Mẫu nhà gác lửng với ngân sách xây dựng 500 triệu (Nguồn: Internet)

>>> Xem thêm:

Mẫu nhà cấp 4 gác lửng 5x15 đẹp mái Thái

Một mẫu nhà gác lửng 5x15 khác cũng được yêu thích là nhà mái Thái. Phần mái có độ dốc sẽ tăng khả năng thoát nước, phù hợp với những khu vực thời tiết mưa nhiều, độ ẩm cao. Ngoài ra, bạn có thể lợp mái bằng tấm xi măng DURAflex bởi tấm có khả năng cách nhiệt chống nóng, giúp giữ cho ngôi nhà luôn mát mẻ, thoáng đãng vào những ngày nắng nóng.

Image
Mẫu nhà cấp 4 gác lửng 5x15 đẹp mái Thái

Mẫu nhà cấp 4 gác lửng 5x15 mái Thái đẹp, hiện đại, sang trọng (Nguồn: Internet)

Mẫu nhà cấp 4 có gác lửng đẹp 5x15 mái bằng

Chi phí xây nhà gác lửng 5x15 mái bằng tương đối hợp lý nên được ưa chuộng nhiều ở khu vực nông thôn. Nhà mái bằng thường hứng trọn nắng nóng trực tiếp từ mặt trời, vì vậy cần lót mái chống nóng từ tấm xi măng DURAflex để cách nhiệt, giúp ngôi nhà mát mẻ hơn.

Image
Mẫu nhà cấp 4 có gác lửng đẹp 5x15 mái bằng

Mẫu nhà gác lửng 5x15 cũng có thể kết hợp với mái bằng (Nguồn: Internet)

Mẫu nhà cấp 4 có gác lửng đẹp 5x15 mái lệch

Mẫu nhà gác lửng 5x15 mái lệch sẽ mang đến sự trẻ trung, hiện đại và phá cách. Đường chéo của mái nhà tạo điểm nhấn, giúp ngôi nhà độc đáo và ấn tượng hơn.

Image
Mẫu nhà cấp 4 có gác lửng đẹp 5x15 mái lệch

Kiểu mái lệch giúp ngôi nhà trở nên độc đáo (Nguồn: Internet)

Mẫu nhà cấp 4 có gác lửng đẹp 5x15 mái Nhật

Mẫu nhà cấp 4 gác lửng 5x15 kiểu mái Nhật là một lựa chọn tuyệt vời cho những người ở lứa tuổi trung niên. Với vẻ đẹp truyền thống và sự thanh lịch, mẫu nhà này mang đến một không gian sống ấm cúng và đầy tinh tế.

Image
Mẫu nhà cấp 4 có gác lửng đẹp 5x15 mái Nhật

Mẫu nhà cấp 4 có gác lửng đẹp 5x15 mái Nhật đẹp, thiết kế ấn tượng (Nguồn: Internet)

Mẫu nhà cấp 4 thiết kế gác lửng 5x15 mái ngói

Nếu bạn yêu thích sự truyền thống và muốn tạo ra một không gian ấm cúng, đậm chất truyền thống, mẫu mái ngói là một lựa chọn lý tưởng khi thiết kế nhà cấp 4 của riêng mình.

Image
Mẫu nhà cấp 4 thiết kế gác lửng 5x15 mái ngói

Mẫu nhà cấp 4 thiết kế gác lửng 5x15 với kiểu mái ngói màu đỏ gạch, tạo điểm nhấn cho ngôi nhà (Nguồn: Internet)

Mẫu nhà cấp 4 thiết kế gác lửng 5x15 mái tôn 

Mẫu thiết kế nhà dưới đây có phần gác lửng được lợp mái tôn, kết hợp cửa sổ kính và ống khói tạo điểm nhấn cho ngôi nhà. Tuy nhiên, mái tôn không có khả năng cách âm, cách nhiệt tốt. Vì vậy, gia chủ có thể lót thêm tấm xi măng DURAflex để giúp ngôi nhà giảm bớt ảnh hưởng từ những tiếng ồn từ bên ngoài, đồng thời tạo không khí mát mẻ, thoải mái hơn.

Image
Mẫu nhà cấp 4 thiết kế gác lửng 5x15 mái tôn

Mẫu nhà cấp 4 thiết kế gác lửng 5x15 mái tôn đẹp, giá rẻ (Nguồn: Internet)

Mẫu nhà gác lửng cấp 4 diện tích 5x15 với phòng thờ

Nhiều mẫu nhà gác lửng 5x15 được kiến trúc sư thiết kế không gian thờ riêng biệt để tăng tính nghiêm trang, linh thiêng.

Image
Mẫu nhà gác lửng cấp 4 diện tích 5x15 với phòng thờ

Mẫu nhà gác lửng cấp 4 diện tích 5x15 có phòng thờ đẹp, chuẩn phong thủy (Nguồn: Internet)

Mẫu nhà cấp 4 có gác lửng đẹp 5x15 có sân vườn

Trong trường hợp nhà có ít người, bạn có thể cân nhắc phương án giảm diện tích xây dựng nhà ở để có thêm không gian cho sân vườn. Bạn có thể sử dụng khoảng vườn này để đậu xe hoặc trồng thêm cây xanh giúp không khí thêm thoáng mát.

Image
Mẫu nhà cấp 4 có gác lửng đẹp 5x15 có sân vườn

Mẫu nhà cấp 4 có gác lửng đẹp 5x15 có sân vườn đẹp, thoáng mát (Nguồn: Internet)

Nhà cấp 4 có gác lửng đẹp 5x15 có gara ô tô

Nếu gia đình bạn có ô tô hoặc đang lên kế hoạch sắm một chiếc “xế hộp” thì đừng quên trình bày với kiến trúc sư để họ hỗ trợ bạn thiết kế một chiếc gara từ tấm xi măng DURAflex với đầy đủ công năng nhé.

Image
Nhà cấp 4 có gác lửng đẹp 5x15 có gara ô tô

Nhà cấp 4 có gác lửng đẹp 5x15 có gara ô tô bên hông nhà (Nguồn: Internet)

Nhà cấp 4 gác lửng 5x15 phong cách hiện đại

Nhà gác lửng hiện đại thường không sử dụng nhiều hoạt tiết trang trí. Chỉ cần màu sơn trắng đơn giản thêm cây cối làm điểm nhấn là đã đủ ấn tượng.

Image
Nhà cấp 4 gác lửng 5x15 phong cách hiện đại

Mẫu nhà cấp 4 gác lửng hiện đại (Nguồn: Internet)

Nhà cấp 4 5x15m có gác lửng phong cách cổ điển

Phong cách cổ điển cũng được ứng dụng trong một số mẫu nhà gác lửng 5x15. Tuy nhiên, bạn cần biết tiết chế và lựa chọn nội thất hợp lý để không làm ngôi nhà có cảm giác chật chội, rối mắt.

Image
Nhà cấp 4 5x15m có gác lửng phong cách cổ điển

Mẫu nhà gác lửng 5x15 mang hơi hướng cổ điển (Nguồn: Internet)

Bản vẽ thiết kế mẫu nhà gác lửng 5x15m

Sẽ không có đáp án cho câu hỏi “bản vẽ mẫu nhà gác lửng đẹp nhất” bởi lẽ mỗi phong cách, mỗi thiết kế sẽ phù hợp với một ngôi nhà khác nhau. Chỉ cần những người trong gia đình cảm thấy thoải mái và thuận tiện để sinh hoạt thì đó là bản vẽ đẹp nhất.

Dưới đây là một số bản thiết kế mẫu mà bạn có thể tham khảo để áp dụng cho ngôi nhà tương lai của mình:

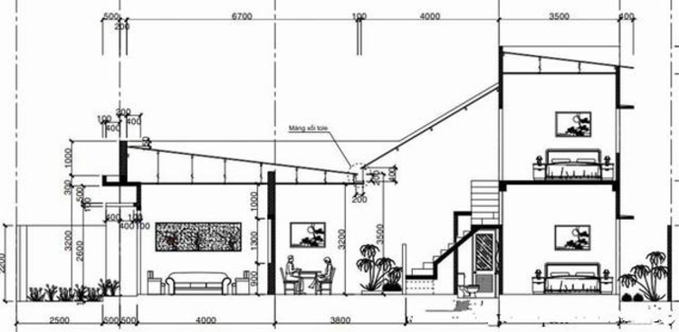
Image
Bản vẽ thiết kế mẫu nhà gác lửng 5x15m

Mẫu bản vẽ 3D nhà gác lửng 5x15 thích hợp cho vợ chồng mới cưới (Nguồn: Internet)

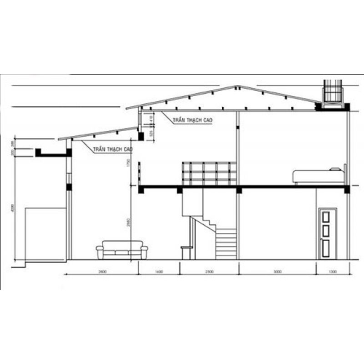
Image
Bản vẽ cad thiết kế mẫu nhà gác lửng 5x15m

Mẫu bản vẽ thiết kế 3D nhà gác lửng 5x15 đẹp, rộng rãi (Nguồn: Internet)

Image
Mẫu bản vẽ 3D nhà gác lửng 5x15 đơn giản, phổ biến hiện nay

Mẫu bản vẽ 3D nhà gác lửng 5x15 đơn giản, phổ biến hiện nay (Nguồn: Internet)

Image
Mẫu nhà gác lửng 5x15 hiện đại, tiện nghi, sang trọng

Thiết kế mẫu nhà gác lửng 5x15 hiện đại, tiện nghi (Nguồn: Internet)

Những lưu ý khi xây dựng mẫu nhà gác lửng 5x15m

Khi xây dựng một mẫu nhà gác lửng 5x15, bạn cần cân nhắc những lưu ý quan trọng dưới đây:

  • Lên kế hoạch thiết kế chi tiết: Trước khi bắt đầu xây dựng, bạn cần có một bản kế hoạch thiết kế cụ thể được kiến trúc sư hoặc những người có kinh nghiệm tư vấn. 
  • Cân nhắc về chiều cao: Chiều cao phải đảm bảo người bên dưới sinh hoạt thoải mái nhưng cũng không được quá cao vì sẽ ảnh hưởng đến thẩm mỹ của cả ngôi nhà. 
  • Chú ý đến ánh sáng và khả năng lưu thông không khí: Bạn có thể thiết kế thêm cửa sổ, dùng kính trong suốt hay làm giếng trời để tận dụng ánh sáng tự nhiên bên ngoài và giúp gác lửng thông thoáng hơn.
  • Vị trí và kết cấu của hệ thống cầu thang: Vị trí cầu thang nên thuận tiện cho quá trình sinh hoạt. Bạn có thể chọn kiểu cầu thang bay, xoắn ốc,... Tuy nhiên kết cấu của chúng phải vững chắc để đảm bảo an toàn.
  • Tận dụng không gian dưới gác và dưới cầu thang: Đây là nơi thích hợp để bạn lưu trữ đồ đạc ít khi dùng tới. Nếu không gian bên dưới đủ rộng và cao, bạn có thể cân nhắc làm phòng ngủ hay phòng bếp.
  • Cân nhắc đến khả năng chống ồn: Gác lửng thường nằm trên không gian sinh hoạt chung của các thành viên. Vì vậy, bạn nên chọn vật liệu cách âm tốt cho tường và sàn.
  • Lựa chọn vật liệu xây dựng nhà gác lửng chính hãng, chất lượng: Bạn nên ưu tiên chọn vật liệu phù hợp với kết cấu và mục đích sử dụng. Đặc biệt đối với những trường hợp cơi nới thêm gác lửng cho nhà ở thì các vật liệu làm sàn có đặc tính nhẹ, độ bền cao, chịu lực tốt như tấm xi măng DURAflex 2X sẽ đảm bảo chắc chắn và an toàn hơn cho gia đình.
Image
Những lưu ý khi xây dựng mẫu nhà gác lửng 5x15m

Lựa chọn vật liệu tốt là lưu ý quan trọng khi xây nhà gác lửng (Nguồn: Internet)

Trên đây là một số thông tin về các mẫu nhà gác lửng 5x15m đang thịnh hành nhất hiện nay. Hy vọng bài viết này có thể giúp bạn nắm được những lưu ý quan trọng để xây dựng được mẫu nhà gác lửng như mong ước.

Nếu có nhu cầu tìm hiểu kỹ hơn về vật liệu xây nhà gác lửng bền chắc, chất lượng, vui lòng liên hệ ngay với DURAflex qua số hotline miễn cước toàn quốc 18001218 hoặc website https://duraflex.com.vn/vi để được tư vấn viên hỗ trợ chi tiết.

LIÊN HỆ TƯ VẤN

Đánh giá và nhận xét

Đánh giá trung bình

0/5

5

4

3

2

1

Chia sẻ và nhận xét về bài viết

Chia sẻ và nhận xét về bài viết

Đánh giá của bạn về bài viết:

Bài viết chưa có đánh giá nào